
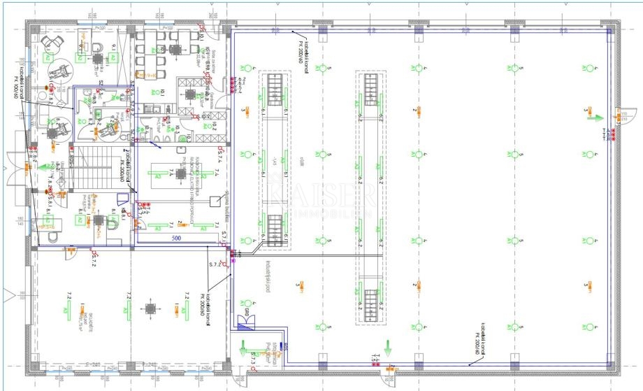
Агентство Kaiser Immobilien предлагает земельный участок с действующим разрешением на строительство бизнес-центра. Площадь участка составляет 3500 м², он расположен в Соболе, муниципалитет Чавле, в непосредственной близости от автомагистрали A7 Риека-Загреб и съезда с автомагистрали. Отличная транспортная доступность и непосредственная близость к промышленной зоне Кукуляново (5 км) являются огромным преимуществом этого места. Действующее разрешение на строительство распространяется на строительство бизнес-центра площадью 800 м² с 4 въездами и большой площадкой для обслуживания. Участок абсолютно ровный, расчищен, коммунальные услуги оплачены, рядом находится трансформаторная подстанция мощностью 50 кВт, а также другие коммуникации. Земельный участок находится в собственности юридического лица (налог на переход права собственности не взимается). Заинтересованные лица имеют право ознакомиться с основным проектом. https://www.youtube.com/watch?v=nUiXrgH7yzU Комиссия агентства для покупателя составляет 3% + НДС и выплачивается только при продаже недвижимости, при подписании первого договора купли-продажи. За дополнительной информацией обращайтесь: Марияна Цуцулич. Телефон: + 385 98 186 9950. Электронная почта: marijana.cuculic@kaiser-immobilien.hr.
Агент, отвечающий за эту недвижимость в GROBNIK с ценой 385.000 €
Marijana Svijetlana Cuculić
Мобильный телефон: +385981869950, +385995677888
При ответе на объявление обязательно укажите шифр объекта недвижимости: REC-1221931
Kaiser Immobilien
Телефон: 051823491
Подробнее об агентствеПоследние объекты
Связанные объекты недвижимости