Top Banner
Поиск по алфавиту

282.000 € - UMAG Квартира REC-ID 1224413

Галерея
  • Город: UMAG
  • Цена (€): 282.000 €
  • Район: 77 m2
  • Комнат: 2
  • Ванных комнат: 2
  • Транспорт: -
  • Близость моря: -
  • Расстояние до центра: 0 m
  • Расстояние до моря: 0 m

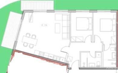
В самом городе Умагу, в рамках современного жилого проекта с 122 квартирами, продается квартира на первом этаже здания общей площадью 77,8 м², с садом, террасой, кладовкой и парковочным местом. Квартира с номером 0-16 расположена на первом этаже и состоит из: - Прихожей - 2 ванных комнат - 2 спален - Открытой гостиной с кухней и столовой - Выхода на террасу (6,84 м²) и сад (25,59 м²) К квартире прилагается: - Кладовка (3,78 м²) - Парковочное место в гараже (12,50 м²) Технические характеристики: - Железобетонная конструкция - Теплоизоляционный фасад (ETICS, 10 см) - Высококачественные ПВХ окна, подъемно-сдвижные стенки - Электрические жалюзи в комнатах - Мультисплит-кондиционирование во всех помещениях - Первоклассная керамика и паркет - Собственные счетчики электроэнергии и воды - Видеодомофон, интернет и TV подключение Здание включает: - 74 гаражных места, 82 открытых и 25 крытых парковочных мест - Всего 105 кладовок - Лифт и лестничные клетки от 4 основных входов - Подвальное помещение с гаражами и коммуникацией - Квартиры с 1 по 3 этажи. Местоположение: 100–500 м от детского сада, школы, магазинов, спортивных объектов и центра 700 м до моря, набережной и городской пляжа. Завершение работ запланировано на конец 2025 года. Для получения дополнительной информации мы к вашим услугам: Азра +385 91 611 5706 +385 98 420 885 azra@almadominvest.com

Связаться с продавцом

Kонтакт: Alma Dom - Real Estate
Запрос на недвижимость: Квартира - Продается - UMAG
RECID: 1224413

Agent

Агент, отвечающий за эту недвижимость в UMAG с ценой 282.000 €

Alma Valjevac

Телефон: +38552213332
Мобильный телефон: +38598420885

Сделать звонок Связаться с продавцом

КОНТАКТ РЕКЛАМОДАТЕЛЯ

При ответе на объявление обязательно укажите шифр объекта недвижимости: REC-1224413

Alma Dom - Real Estate

Alma Dom - Real Estate

Телефон: +385916115706
Мобильный телефон: +385 91 6115706 +38598420885 +385991962863

Подробнее об агентстве
Добавить недвижимость
Right Details Banners
Roto Details Banners