Top Banner
Поиск по алфавиту

Цена отсутствует - PAKOŠTANE Дом REC-ID 1226419

Галерея
  • Город: PAKOŠTANE
  • Цена: Цена отсутствует
  • Район: 58 m2
  • Комнат: 3
  • Вид: море
  • Участок: 1357 m2
  • Ванных комнат: 2
  • Транспорт: +
  • Близость моря: -
  • Расстояние до центра: 0 m
  • Расстояние до моря: 0 m

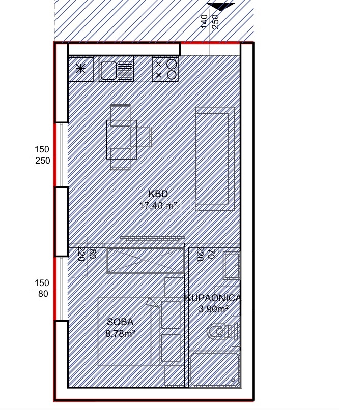
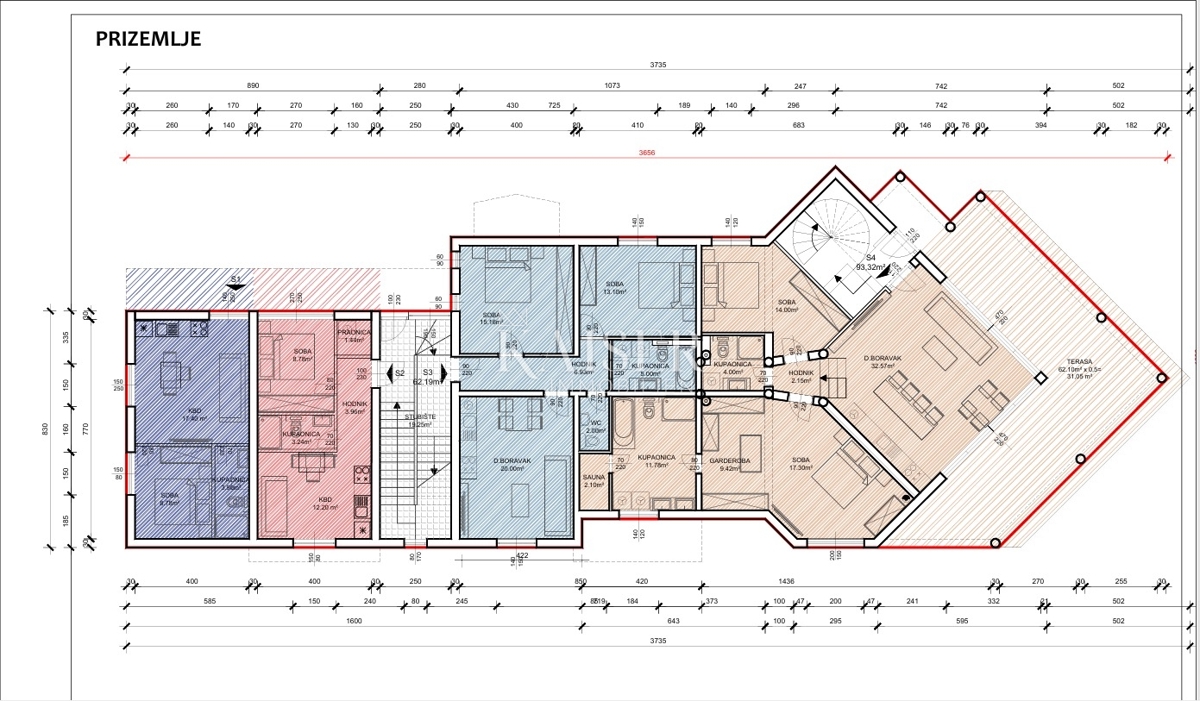
Kaiser Immobilien представляет: Роскошные апартаменты в престижной новостройке в Пакоштане. Представляем вам эксклюзивное предложение из 11 роскошных апартаментов, расположенных в современном жилом доме с бассейном, подсобным помещением, собственной парковкой и кладовой для каждой квартиры. Всего в нескольких шагах от моря, это прекрасное новое здание занимает первый и второй этажи, сочетая в себе элегантность, комфорт и превосходное расположение. Стоимость квадратного метра апартаментов составляет 4000 евро. ПЕРВЫЙ ЭТАЖ – 4 квартиры Квартира 1 – 46,28 м² (гостиная, кухня, 1 спальня, ванная комната, коридор, крытая терраса, сад, кладовая, парковочное место) Квартира 2 – 42,54 м² (гостиная, кухня, 1 спальня, 1 ванная комната, прачечная, крытая терраса, кладовая, парковочное место) Квартира 3 – 68,19 м² (гостиная, кухня, 2 спальни, ванная комната, туалет, терраса, кладовая, парковочное место) Квартира 4 – 146,05 м² (гостиная, кухня, 2 спальни, 2 ванные комнаты, сауна, гардеробная, крытая терраса, коридор, кладовая, парковочное место) 1-Й ЭТАЖ – 4 квартиры Квартира 5 – 67,82 м² (гостиная, кухня, 2 спальни, 2 ванные комнаты, открытая терраса, лоджия, балкон, кладовая, парковочное место) Квартира 6 – 58,54 м² (гостиная комната, кухня, 1 спальня, 2 ванные комнаты, крытая терраса, балкон, коридор, кладовая, парковочное место) Квартира 7 — 48,25 м² (гостиная, кухня, 1 спальня, 1 ванная комната, балкон, кладовая, парковочное место) Квартира 8 — 147,96 м² (гостиная, кухня, 3 спальни, 3 ванные комнаты, крытая и открытая терраса, балкон, кладовая, парковочное место) 2-Й ЭТАЖ — 3 квартиры Квартира 9 — 71,58 м² (гостиная, кухня, 2 спальни, 2 ванные комнаты, балкон, 2 террасы, кладовая, парковочное место) Квартира 10 — 58,48 м² (гостиная, кухня, 1 спальня, 2 ванные комнаты, открытая терраса, балкон, кладовая, парковочное место) Квартира 11 — 58,18 м² (гостиная, кухня, 1 спальня, ванная комната, прачечная, балкон, кладовая, парковочное место) ДОПОЛНИТЕЛЬНО ПРЕИМУЩЕСТВА Бассейн во дворе площадью 63,62 м2 для освежения и релаксации. Вспомогательное здание в качестве дополнительного контента. Частная парковка для каждого арендатора. Кладовая для каждой квартиры. Эта недвижимость является идеальным выбором для тех, кто ищет современный и функциональный дом в спокойном месте. С просторным садом площадью 1357 м2. Эта недвижимость представляет собой исключительную возможность для инвестиций в туризм, а также для семейной жизни с абсолютным комфортом и роскошью. Дом имеет впечатляющую площадь и функциональную планировку. Первый этаж - Просторный первый этаж включает в себя 2 квартиры с одной спальней, 2 квартиры с двумя спальнями, одна из которых имеет свою собственную сауну Второй этаж - На первом этаже расположены 3 квартиры с одной спальней и 1 квартира с двумя спальнями Второй этаж - Второй этаж также предлагает роскошь и уединение с современно оформленными квартирами. 2 квартиры с двумя спальнями и 2 квартиры с одной спальней. Земля и дополнительные удобства Большой сад — средиземноморский оазис спокойствия Близость к морю — недвижимость расположена в непосредственной близости от пляжа Отличная инвестиция — дом уже адаптирован для туристических целей с 12 квартирами Эта недвижимость представляет собой идеальную возможность для инвесторов, которые хотят успешный бизнес в сфере туризма или для тех, кто ищет просторный дом в престижном месте. Пакоштане, далматинский город, расположенный между Адриатическим морем и озером Врана, рай для любителей природы, предлагает множество песчаных, галечных и каменистых пляжей, самые известные из которых — пляжи Пунта, Пилатуса, Янице. Всего в нескольких километрах от Пакоштане находится природный парк Врана озеро, самое большое естественное озеро в Хорватии. Он идеально подходит для наблюдения за птицами (более 250 видов), езды на велосипеде по ухоженным тропам, а также рыбалки и каякинга. Небольшие острова Вели Шкой и Св. Остров Бабуляш, Юстина, особенно интересен своим расположением напротив города и его можно исследовать на лодке. Пакоштане — отличная отправная точка для посещения Национального парка Корнаты, одного из самых красивых островных регионов Европы. Вы можете отправиться на организованную морскую экскурсию и исследовать более 89 островов и рифов. Расстояния от Пакоштане до важных транспортных узлов и городов: Задар (30 км) — город с богатой историей и такими известными достопримечательностями, как Морской орган и Приветствие солнцу Шибеник (40 км) — с великолепным собором Святого Иакова (ЮНЕСКО) Национальный парк Крка (50 км) — с красивыми водопадами и очаровательной природой Автомагистраль А1 (съезд Бенковац) — 18 км (примерно 15 минут езды) Аэропорт Задара — 33 км (примерно 30 минут езды) Аэропорт Сплита — 100 км (примерно 1 час 15 минут езды) Загреб — 300 км (примерно 3 часа езды) Риека — 270 км (примерно 3 часа езды) Дубровник — 350 км (примерно 4 часа 30 минут езды) Любляна — 370 км (примерно 4 часа езды) Вена (Wien) — 600 км (примерно 6 часов езды) Комиссия агентства за Для покупателя взимается 3% + НДС, и он оплачивается с первого юридического акта. Не упустите возможность, свяжитесь с нами и обеспечьте себе вид на море из собственной квартиры в Пакоштане! Тел.: 00385992510230 Эл. почта: marijana.papic@kaiser-immobilien.hr

Связаться с продавцом

Kонтакт: Kaiser Immobilien
Запрос на недвижимость: Дом - Продается - PAKOŠTANE
RECID: 1226419

Agent

Агент, отвечающий за эту недвижимость в PAKOŠTANE

Marijana Papić

Мобильный телефон: +385992510230, +385995677888

Сделать звонок Связаться с продавцом

КОНТАКТ РЕКЛАМОДАТЕЛЯ

При ответе на объявление обязательно укажите шифр объекта недвижимости: REC-1226419

Kaiser Immobilien

Kaiser Immobilien

Телефон: 051823491

Подробнее об агентстве
Добавить недвижимость
Right Details Banners
Roto Details Banners