Top Banner
Поиск по алфавиту

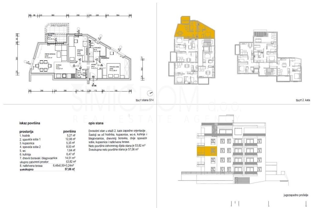
216.866 € - DUGI RAT Квартира REC-ID 1229019

Галерея
  • Город: DUGI RAT
  • Цена (€): 216.866 €
  • €/m2: 3.800 €
  • Район: 57 m2
  • Ванных комнат: 1
  • Транспорт: -
  • Близость моря: -
  • Расстояние до центра: 0 m
  • Расстояние до моря: 0 m

Связаться с продавцом

Kонтакт: ŠIMIĆ DOM d.o.o.
Запрос на недвижимость: Квартира - Продается - DUGI RAT
RECID: 1229019

Agent

Агент, отвечающий за эту недвижимость в DUGI RAT с ценой 216.866 €

Vedrana Kaćanski

Телефон: +385 21 317 447
Мобильный телефон: +385 99 535 3827

Сделать звонок Связаться с продавцом

КОНТАКТ РЕКЛАМОДАТЕЛЯ

При ответе на объявление обязательно укажите шифр объекта недвижимости: REC-1229019

ŠIMIĆ DOM d.o.o.

ŠIMIĆ DOM d.o.o.

Телефон: +385 (0)21 317 447

Подробнее об агентстве
Добавить недвижимость
Right Details Banners
Roto Details Banners