Top Banner
Поиск по алфавиту

55.000 € - FILIPANA Участок REC-ID 1236292

Галерея
  • Город: FILIPANA
  • Цена (€): 55.000 €
  • Участок: 418 m2
  • Транспорт: -
  • Близость моря: +
  • Расстояние до центра: 0 m
  • Расстояние до моря: 0 m

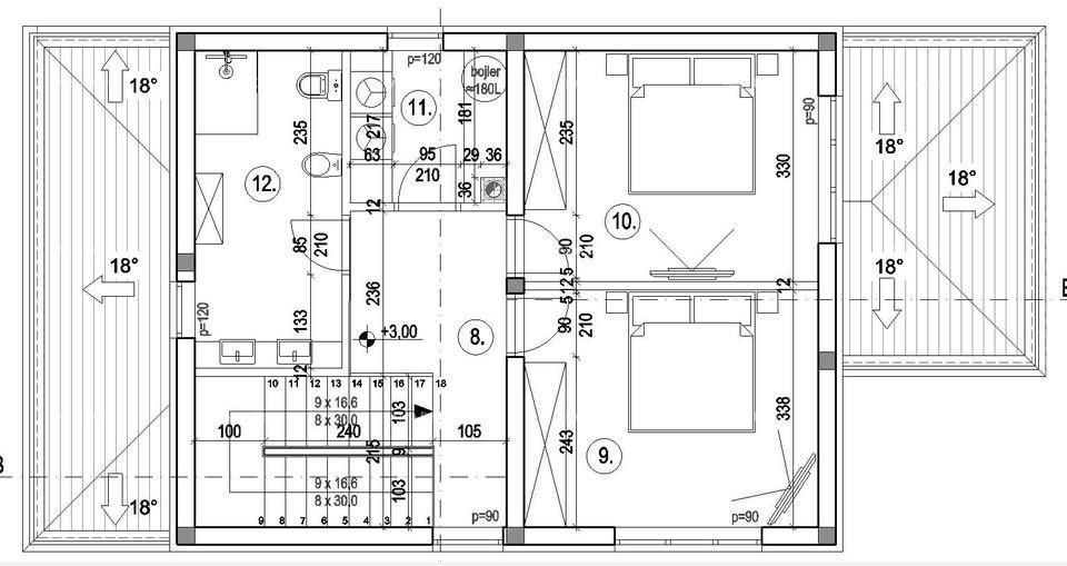
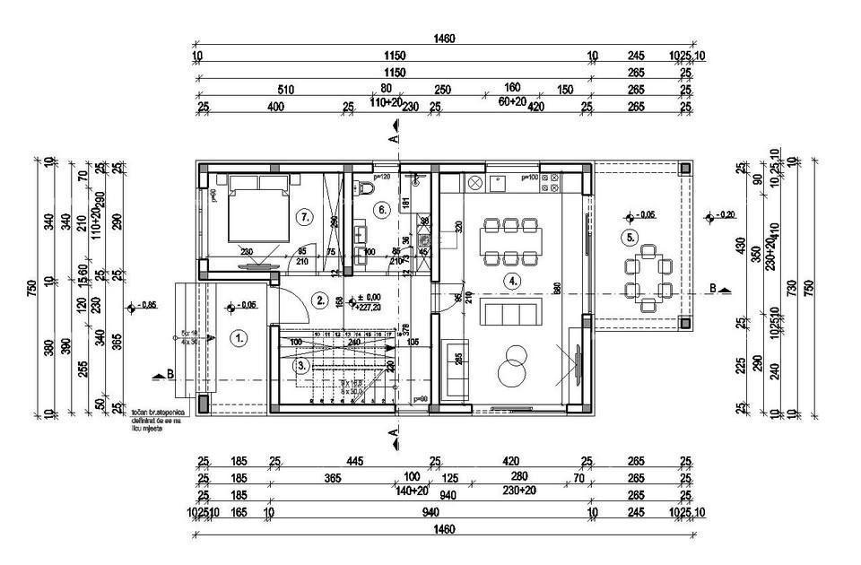
Продается земельный участок под застройку, площадью 418 м2, Филиппины. Земельный участок с готовым проектом двухэтажного дома. Проект уже подан на получение разрешения на строительство, которое, как ожидается, будет выдано в ближайшее время. На участке запроектирован двухэтажный дом чистой жилой площадью 135 м², состоящий из: Первый этаж: большая кухня открытой планировки с гостиной, крытая терраса, одна спальня, ванная комната, лестница и крытый вход. Первый этаж: две спальни, ванная комната и котельная/прачечная. Сад: В саду есть бассейн площадью 20 м² и два парковочных места. Подъездная дорога к участку будет засыпана до уровня щебня, что обеспечит легкий доступ к участку. Идеальная возможность построить собственный дом в тихом месте с большим потенциалом! Более подробную информацию можно найти в следующих материалах: Азра +385 91 611 5706 +385 98 420 885 azra@almadominvest.com

Связаться с продавцом

Kонтакт: Alma Dom - Real Estate
Запрос на недвижимость: Участок - Продается - FILIPANA
RECID: 1236292

КОНТАКТ РЕКЛАМОДАТЕЛЯ

При ответе на объявление обязательно укажите шифр объекта недвижимости: REC-1236292

Alma Dom - Real Estate

Alma Dom - Real Estate

Телефон: +385916115706
Мобильный телефон: +385 91 6115706 +38598420885 +385991962863

Подробнее об агентстве
Добавить недвижимость
Right Details Banners
Roto Details Banners