Top Banner
Поиск по алфавиту

242.000 € - MARINIĆI Квартира REC-ID 1237357

Галерея
  • Город: MARINIĆI
  • Цена (€): 242.000 €
  • Район: 77 m2
  • Комнат: 3
  • Ванных комнат: 1
  • Транспорт: +
  • Близость моря: -
  • Расстояние до центра: 0 m
  • Расстояние до моря: 0 m

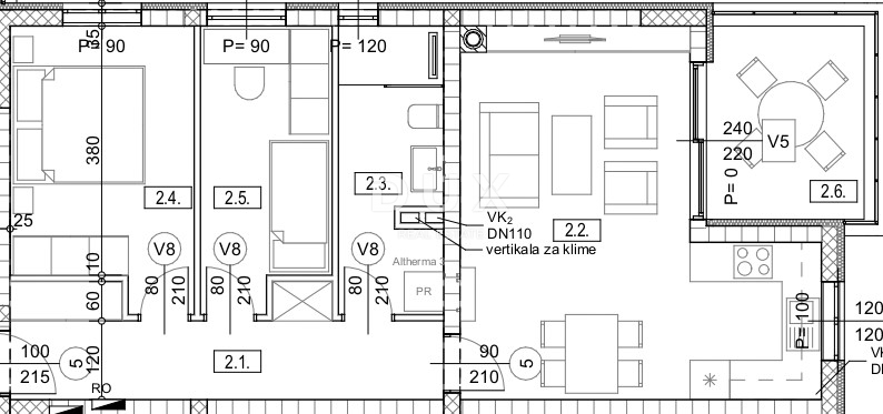
ВИШКОВО, МАРИНИЧИ - 2 комн. + 2 спальни в качественной новостройке На тихой семейной улице в Мариничи продаётся квартира в качественной новостройке, состоящей из шести квартир и одного коммерческого помещения. Квартира расположена на втором этаже и имеет общую площадь 77,45 м², из которых 67,90 м² жилая. Кроме того, в квартире есть кладовая площадью 3,2 м² и два парковочных места общей площадью 25 м². Планировка: прихожая, гостиная, объединённая с кухней-столовой, две спальни, ванная комната и лоджия. Квартира функциональная, современная и адаптирована к современному образу жизни. Расположение идеально подходит для семьи: рядом находятся магазины, детский сад, начальная школа, аптека, автобусная остановка, спортивные сооружения и все необходимые объекты инфраструктуры в районах Мариничи и Вишково. Здание соответствует современным строительным тенденциям: качественная теплоизоляция, современные материалы, энергоэффективные системы, современная столярка и изысканный дизайн интерьера. Уважаемые клиенты, комиссия агентства взимается в соответствии с Общими условиями. https://www.dux-nekretnine.hr/opci-uvjeti-poslovanja

Связаться с продавцом

Kонтакт: DUX Nekretnine
Запрос на недвижимость: Квартира - Продается - MARINIĆI
RECID: 1237357

Добавить недвижимость
Right Details Banners
Roto Details Banners