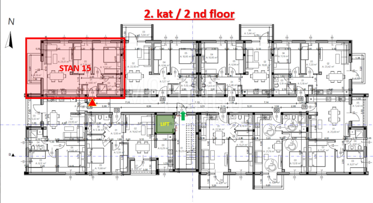
ПУЛА – МОНВИДАЛ | НОВОСТРОЙКА | КВАРТИРА 15 – 2 ЭТАЖ | 54,95м² Предлагается к продаже квартира №15 в новом жилом проекте в районе Монвидал, г. Пула, здание B, 2-й этаж современного многоквартирного дома с лифтом. ОСНОВНАЯ ИНФОРМАЦИЯ: этаж: 2 этаж общая площадь: 54,95 м² ориентация: северо-запад количество спален: 2 ванная / WC: 1 планируемый срок заселения: октябрь 2027 г. Квартира имеет функциональную и продуманную планировку, с акцентом на гостиную и отличное естественное освещение благодаря южной ориентации. ОСНАЩЕНИЕ И СТАНДАРТ: продажа «под ключ» тёплый пол в ванной комнате кондиционеры в остальных помещениях качественный теплоизоляционный фасад – высокий энергетический класс итальянская керамика и ламинат первого класса бронированная входная дверь ПВХ-окна немецкого производителя с двойным остеклением ДОПОЛНИТЕЛЬНЫЕ ПРЕИМУЩЕСТВА: лифт возможность гаражного или наружного парковочного места благоустроенные зелёные зоны отличное расположение – рядом все необходимые объекты инфраструктуры Квартира идеально подходит как для комфортного проживания, так и для надёжной инвестиции под аренду. Для получения дополнительной информации свяжитесь с нами.
Агент, отвечающий за эту недвижимость в PULA с ценой 180.540 €
Zoran Stupar
Мобильный телефон:
+385 99 5705 551
При ответе на объявление обязательно укажите шифр объекта недвижимости: REC-1247715
Molo Longo
Телефон: 051858544
Мобильный телефон:
0993050879
Последние объекты
Связанные объекты недвижимости