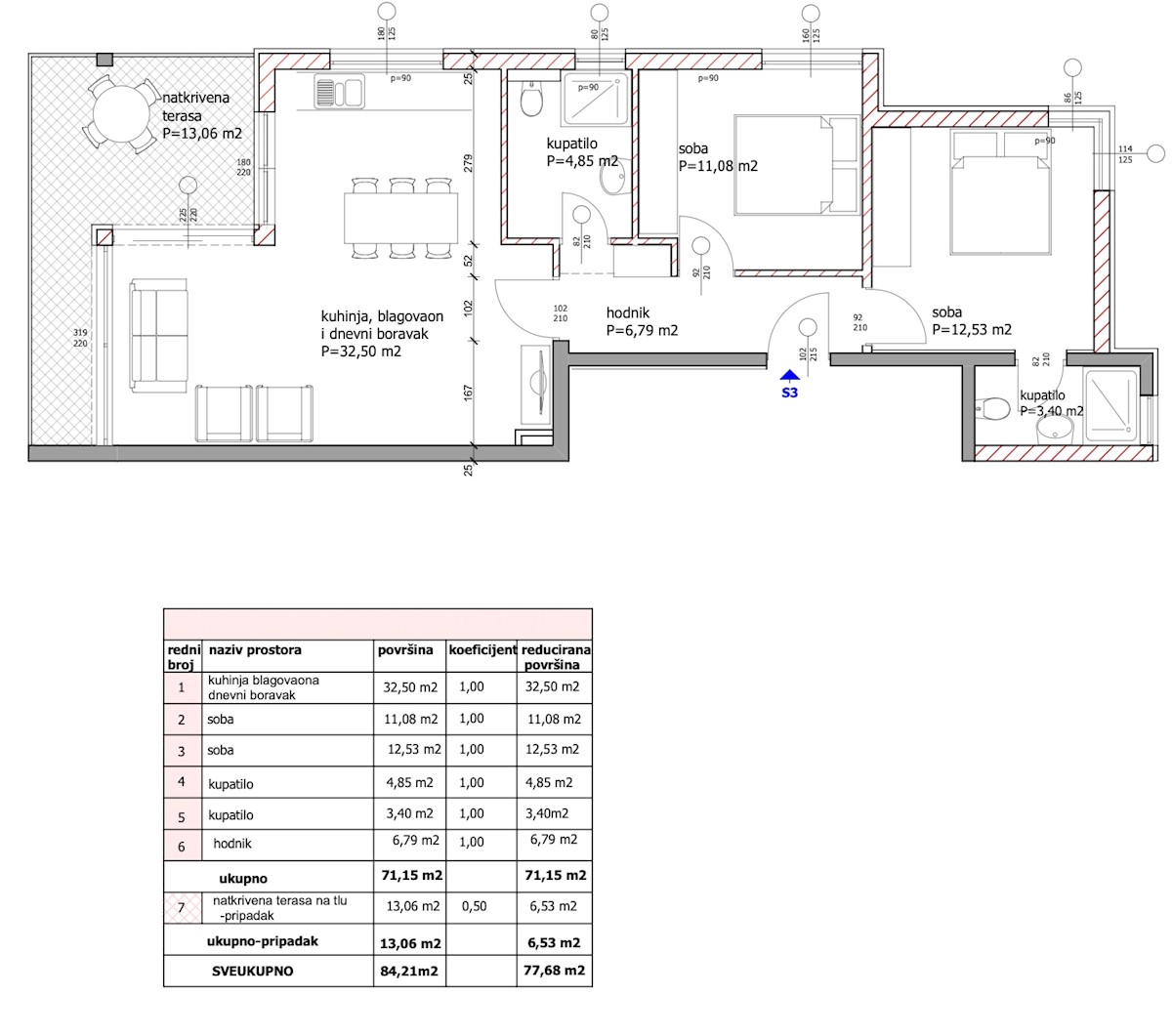
Продаем красивую двухкомнатную квартиру в новом доме, площадью 78 м2, на втором этаже городской виллы. Квартира в стадии строительства и состоит из кухни, гостиной с выходом на террасу, ванной комнаты и двух спален с видом на море. Квартира расположена под шоссе и имеет прямой выход на пляж. В стоимость этой роскошной квартиры входит гараж на цокольном этаже здания, все соединено лифтом. Это стоит посмотреть! Для просмотра этого объекта звоните: +385989322461 (Whats up/ Viber) Владелец агентства Mario Агентство «Вернись домой» Код объекта: 217
Агент, отвечающий за эту недвижимость в BAŠKA VODA с ценой 310.000 €
Mario Marević
Мобильный телефон:
+385989322461
Иностранные языки:
Engleski
При ответе на объявление обязательно укажите шифр объекта недвижимости: REC-876961
Get home
Телефон: +385989322461
Мобильный телефон:
+385989322461
Последние объекты
Связанные объекты недвижимости